View our range of turnkey homes

Discover move-in-ready turnkey homes packed with premium features. No upgrades needed:  Every Kevler home comes with high-quality inclusions as standard, offering unbeatable value without compromise.

View all

Lot 24, Birchs Road

Prebbleton, Selwyn

Healthier, Safer, Smarter, Greener - Experience the Kevler Difference

Birchs Green - a Premium new subdivision located in Prebbleton

  • TURNKEY option also available at $959,000
  • Included all Kevler Advantage Bundle (home features) in this house
  • Stone benchtop, Fisher & Paykel appliances with induction cooktop
  • Water filter system in kitchen
  • Ensuite bathroom with tiled shower and niche
  • Thermally broken window joinery with Low-E Argon gas double glazing
  • Fully fenced with gate included
  • Fully landscaped with automated irrigation system
  • Healthy Homes compliant
  • 3 Year "Kevler Care" Warranty
Sold
SOLD
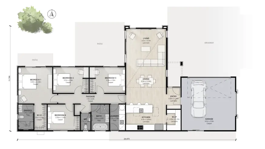
4
2
1
2
193 m²
453 m²

Home features

Solar panels

Security camera

App controlled garage door

Central heating & cooling

Motorised blinds

EV compatible

Video intercom

Moisture sensor bathroom fans

High ceilings

Irrigation system

Quality ventilation

Attic storage

Enquire

Please wait...