View our range of homes

Discover all home and land packages with premium features. No upgrades needed:  Every Kevler home comes with high-quality inclusions as standard, offering unbeatable value without compromise.

View all

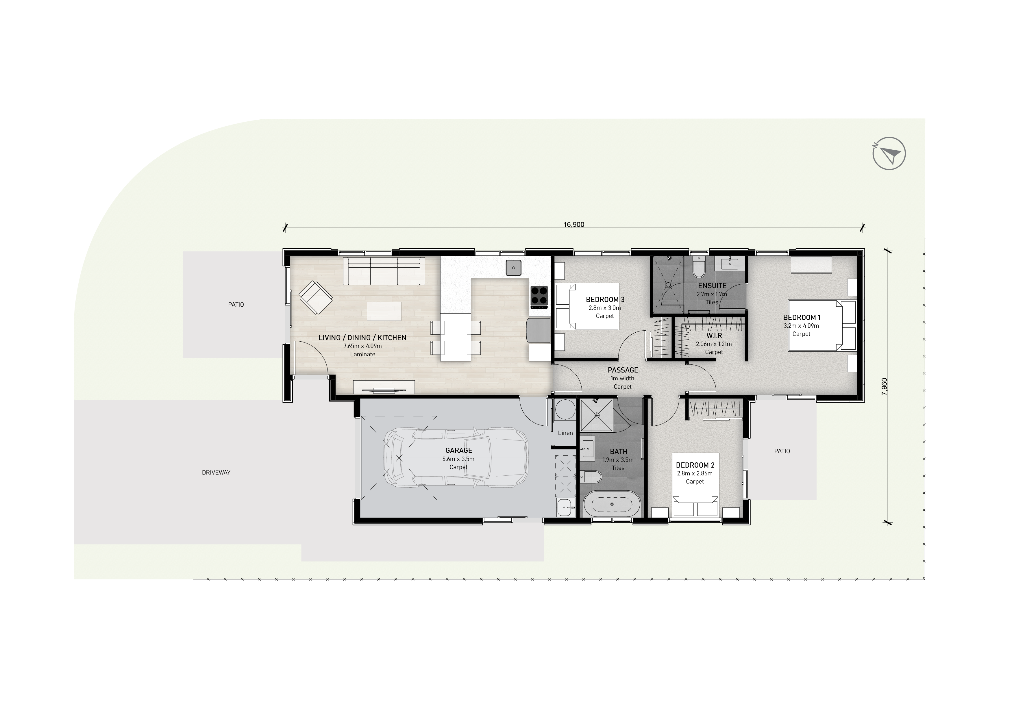
Lot 259, 114 Lemonwood Drive

Rolleston, Selwyn

|| Healthier, Safer, Smarter, Greener - Experience the Kevler Difference ||

Showhome is open for viewing: Wednesday to Sunday, between 12:00 PM and 4:00 PM

 

  • TURNKEY option also available at $686,000 with 1% deposit, balance payable on completion
  • 140mm exterior wall framing
  • R3.6 wall insulation, R7.0 ceiling insulation
  • Included all Kevler Advantage Bundle (home features) in this house
  • Stone benchtop, Fisher & Paykel appliances with induction cooktop
  • Water filter system in kitchen
  • Ensuite bathroom with tiled shower and niche
  • Thermally broken window joinery with Low-E Argon gas double glazing
  • Fully fenced with gate included
  • Fully landscaped with automated irrigation system
  • Healthy Homes compliant
  • 3 Year "Kevler Care" Warranty
Available
$661,000
3
1
1
2
118 m²
328 m²

Home features

Solar panels

Security camera

App controlled garage door

Central heating & cooling

Motorised blinds

EV compatible

Video intercom

Moisture sensor bathroom fans

High ceilings

Irrigation system

Quality ventilation

Attic storage

Enquire

Please wait...